Ga naar inhoud

de Markestee - de Markestee

Blesdijke

Groepsaccommodatie in de buurt van de Weerribben Wieden

Neem alvast een kijkje

Bekijk alle 10 foto's

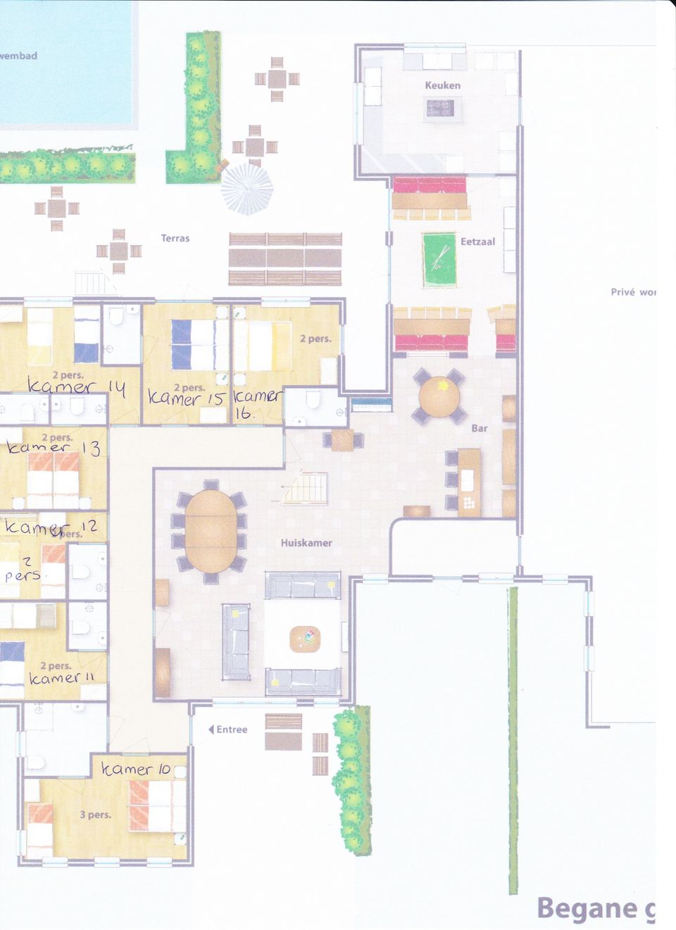
De Markestee is een groepsaccommodatie die geschikt is voor maximaal 30 personen. Er is een gezellige huiskamer met aangrenzende bar. Hier staan comfortabele banken en in de bar kun je een tap aansluiten. Aangrenzend aan de huiskamer is de eetzaal met voldoende zitplaats voor je hele gezelschap en met een pooltafel. Naast deze eetzaal is de grote professionele keuken die van alle gemakken voorzien is met onder andere een professionele vaatwasser en groot fornuis. Op de begane grond zijn zeven slaapkamers, waarvan zes geschikt voor twee personen en een slaapkamer is geschikt voor drie personen. Al deze slaapkamers hebben hun eigen badkamer met douche, toilet en wastafel. Op de eerste etage zijn nog zes slaapkamers, deze zijn geschikt voor 1 tot 4 personen. Deze slaapkamers hebben geen eigen badkamer, maar op de etage zijn twee doucheruimtes en twee toiletten. De slaapkamers op de eerste etage beschikken wel allen over een wastafel op de kamer. Rondom de accommodatie is een ruime tuin met diverse terrassen en knusse zitjes. Op het terrein van de Markestee is ook een buitenzwembad (geopend van half april t/m half september) en een groot buitenterrein met een speeltuin voor kinderen, trampoline, volleybal- en voetbalveld, basketbalbord en een kampvuurplaats! Ook is er nog een vijver.

Groepsgrootte event:
max. 30 personen
Afstand tot jouw locatie:

Hier vind je de Markestee - de Markestee

Markeweg 132
8398 GS Blesdijke
Plan je route

vanaf jouw locatie

Toon resultaten